Эргономика интерьера: Эргономика в дизайне интерьера | Блог L.DesignStudio
Эргономика в дизайне интерьера | Блог L.DesignStudio
В дизайне интерьеров эргономика играет ключевую роль – обстановка должна быть, в первую очередь, удобной и безопасной. И только после выполнения этих условий можно заниматься декором.
Работа над дизайн-проектом начинается с разработки идеи и выяснения бытовых потребностей всех членов семьи. Все эти потребности должны быть полностью закрыты в рамках выбранной концепции – это значит, что интерьер выполнен в соответствии с правилами эргономики.
Изначально эргономика создавалась как наука, изучающая и описывающая оптимальные условия труда, необходимые для роста производительности. Но сейчас это более широкое понятие, которое распространяется на все сферы жизни, в том числе – на дизайн интерьера.
Любое решение должно быть обоснованным и осмысленным. Ведь главная задача дизайна – создать интерьер, который будет не только стильным, но и комфортным.
Основные правилаЖестких требований здесь нет, все очень индивидуально.
Но при соблюдении базовых рекомендаций Вы получите эргономичный интерьер квартиры или дома, который в течение долгих лет будет радовать всех домочадцев.
Если выбор стоит между эстетикой и комфортом, всегда следует выбирать комфорт. Профессиональный дизайнер поможет найти такие варианты, которые будут оптимальны именно для Вашего дома.
Соотношение свободного пространства и мебелиПредметы мебели в любом помещении должны занимать не более 50% площади. Если в интерьере мало свободного пространства, обстановка выглядит тесной и вынужденной. Такого эффекта следует избегать, и это касается всех комнат. Если есть возможность убрать лишнюю мебель и освободить место – это стоит сделать. Не нужно думать, что пустое пространство пропадает зря – именно оно обеспечивает интерьеру нужную степень легкости.
Для детских комнат это правило выглядит немного иначе – мебелью следует занимать не более 30% площади комнаты. Это нужно для того, чтобы ребенок получил достаточное количество свободного пространства.
Ведь он еще не умеет обходить углы и выстраивать свои маршруты по комнате с учетом расположения мебели. Упростите ему задачу – уберите лишние предметы, чтобы малыш мог безопасно изучать окружающий мир в рамках своей комнаты.
Расстояние между основными элементами интерьера должно быть не менее 70 см, вне зависимости от выбранного стиля и размера помещения. Это нужно для того, чтобы взрослые люди могли свободно перемещаться по комнате и пользоваться всеми вещами.
Если проход составляет менее 70 см – очень высока вероятность создания неиспользуемой зоны. При этом люди будут бессознательно избегать неудобств – никому не хочется испытывать дискомфорт в быту, даже если это требует всего пары дополнительных секунд.
Более того, если проходы между предметами слишком малы – это может привести к травмам. В тесноте легко споткнуться мизинцем об угол тумбы или стола, задеть коленом журнальный столик – таких ситуаций очень много.
Чтобы этого избежать, просто соблюдайте нормальное расстояние между предметами – не менее 70 см. Чем больше – тем лучше.
При разработке дизайна кухни нужно ориентироваться на рабочий треугольник, вершинами которого являются три самых используемых предмета – раковина, плита и холодильник.
В идеале человек, пользующийся кухней, должен легко и быстро получать доступ ко всем этим точкам. Их расположение зависит от особенностей конкретного проекта – заказчик озвучивает свои пожелания, а дизайнер облекает эти мысли в конструктивную форму.
В результате получается стильная и удобная кухня, которой комфортно пользоваться. Вся остальная мебель и техника располагается с учетом того, как размещен этот рабочий треугольник.
Важно: предусмотрите достаточное количество и удобное расположение розеток. Они должны располагаться на удобной высоте. Сейчас на кухне много техники – обычно это 5-7 приборов – плита, посудомоечная машина, чайник, микроволновка, мультиварка, кофемашина, блендер.
Все эти приборы должны быть не только удобно размещены на кухне, но и правильно подключены – на это нужно обратить особое внимание, когда придет время принимать работу.
Эргономика в дизайне интерьера: комнаты, офиса, кухни, детской
Эргономика в дизайне интерьера – современная наука, которая занимается изучением жизненного пространства человека, основываясь на оптимальном и гармоничном расположении предметов быта в каждом помещении. Задачами эргономики считают разработку форм мебели и аксессуаров, которые бы делали максимально удобным использование жилья, офиса, предприятия. Основные принципы эргономики: безопасность передвижения, удобство и комфорт.
Принципы эргономики помещений- Эргономика зон отдыха учитывает идеальные параметры предметов, опирается на антропометрические данные: при соблюдении важных принципов эргономики снижается утомляемость, сохраняется здоровье. Мебель для зоны отдыха проектируют таким образом, чтобы учесть градус наклона сиденья и спинки.
Зона сна, оборудованная по всем требованиям, обеспечивает полноценный ночной сон. Размеры кровати, ее длина и ширина учитывают все положения человека, способствующие отдыху — это наличие высокого изголовья, упора для спины, дополнительных полочек, с которых можно брать книги и мелкие вещи, не вставая с кровати. - Эргономика кухни: дизайн учитывает оптимальное расположение обеденного стола и кухонной мебели – в кухне не должно быть ничего стесняющего передвижение домохозяйки, приготовление пищи. Зона приема пищи требует наличия пространства, достаточного для хранения и обработки пищевых продуктов, беспрепятственного доступа к посадочным местам. Размеры стола подбираются в зависимости от габаритов кухонного помещения. Мебель для сиденья покупают, исходя из высоты столов и ширины кухни.
- Эргономика ванной учитывает максимально комфортное и удобное расположение раковины, душевой кабины, ванны и других аксессуаров санузла.
- Соответствие обстановки кабинета требованиям эргономики рабочего места повышает эффективность труда.
Высота сиденья стула или эргономичного кресла определяется длиной голени сидящего человека. Эргономика кресла позволяет легко встать или развернуться за столом, достать документы и канцтовары, расположенные по периметру рабочего места. Эргономика стола учитывает оптимальное положение тела человека, сидящего за ним. - Эргономика комнаты и интерьер, построенный на принципах рационализма, подразумевают наличие естественного освещения, которое проще организовать грамотной проектировкой окон. Эргономика в офисе достигается путем рационального разделения помещения с помощью перегородок или удобного зонирования зданий.
- Интерьеры кафе и закусочных очень отличаются от распределения кухонного пространства в домах или квартирах: здесь учитывается эргономика барной стойки, непродолжительное время принятия пищи, легкий и оригинальный дизайн помещения, возможность одновременного обслуживания десятков посетителей.
- Эргономика пространства гостиниц и отелей проектируется так, чтобы практично использовать каждый квадратный метр учреждения: к мебели и бытовой технике гостиниц предъявляются особые требования, известные специалистам.
Это же касается и организации выставок на небольших пространствах: только профессионалы смогут расположить экспонаты наиболее выгодным образом. - Эргономика детской комнаты подразумевает наличие удобной мебели, которая имеет возможность трансформации, «подрастая» вместе с ребенком. Это регулируемые по высоте и углу наклона парты и столы, кровати «на вырост» с регулировкой высоты, а также удобные кресла, стулья и спортивные конструкции.
Чтобы узнать больше про принципы эргономики в дизайне среды, рекомендуем обратить особое внимание на книгу «Основы эргономики. Человек. Пространство. Интерьер».
Наши специалисты разработают дизайн-проект с учетом всех стандартов эргономики. При этом все пожелания клиента будут отражены в проекте: оборудование интерьера будет подобрано и рассчитано таким образом, чтобы каждая комната, квартира или дом были максимально удобными для проживающих. Поэтому важная составляющая дизайн-проекта любого помещения – подробный, масштабированный план распределения пространства, включающий оптимальную расстановку мебели.
Студия дизайна «Artinterior » спроектирует эргономичный интерьер также и для офисных или промышленных помещений. Это будет грамотно созданный дизайн с идеальным раскладом цветовых и фактурных сочетаний. Эргономика рабочего места, кабинетов, комнат отдыха персонала будет тщательно продумана дизайнерами студии: все помещения станут пригодными для приятной и комфортной работы.
Люди с особыми потребностями нуждаются в индивидуальном подходе к проектированию мебели и предметов быта: в таких случаях широкое распространение приобретают различные поручни и держатели, которыми оборудуются важные зоны жилья или отдыха, помещения для реабилитации инвалидов. Также, при необходимости монтируются пандусы и подъемники.
Одним из основных параметров эргономичной мебели является ее безопасность, в особенности для инвалидов. Обычно параметры безопасности закладывается уже на этапе проектирования элементов модели.
Для максимальной безопасности рекомендуется сглаживать все углы, делать ее более прочной, правильно подбирать ее форму и размеры. Также, в шкафы дополнительно устанавливаются пантографы и другие приспособления, чтобы обеспечить максимальный комфорт при их использовании. Санитарные зоны также отличаются максимальным удобством: благодаря ручкам и поручням люди с ограниченными возможностями смогут без труда обслуживать себя.
Такие интерьеры, приспособленные для жизни и отдыха инвалидов, важно предусмотреть также в больницах, частных клиниках, реабилитационных центрах, в санаториях, пансионатах и хосписах.
Заказ эргономичного дизайн-проекта в киевской студии «Artinterior»Чтобы дом, квартира, офис или салон были оформлены стильно и на основе современных тенденций, стоит обратиться к услугам нашей студии.
Мы готовы разработать проект для помещений любой сложности. Вы можете заказать дизайн квартиры, дома, офиса в Киеве (Одессе, Львове, Днепропетровске, Харькове).
Наши специалисты выберут оптимальный дизайн обязательно с учетом принципов эргономики в интерьере.
Все составляющие мы проработаем идеально – готовый проект будет включать самую эргономичную мебель, гармонирующую с общей концепцией выбранного стиля помещений.
Заказать проект несложно – достаточно связаться с нами по телефону или воспользоваться формой заказа на этом сайте. Сроки и расценки, креативность команды и великолепные результаты порадуют вас!
особенности и создание +75 фото
Эргономическая наука изучает то, как обустроить повседневный быт, в том числе рабочее место человека, в соответствии с его физическими, психическими особенностями.
Эргономика в дизайне интерьеров направлена на создание мебели и всего, что имеется дома или на работе, максимально удобным, для продуктивной деятельности, отдыха. Ее девиз – комфорт, безопасность, удобство перемещения.
Понятие эргономики
Эргономика – это инженерная, проектировочная наука, которая исследует, на что способны люди в имеющихся условиях на работе, дома, с учетом использования различных средств технического оснащения. Это отношения между человеком, окружающей его средой. В процессе исследований используются результаты изучения психофизического состояния людей: общественные отношения внутри группы, коллектива, трудоспособность, удовлетворенность своим трудом, общая усталость. При этом разрабатываются гигиенические мероприятия по снижению «вредности» на работе, для уменьшения количества профессиональных заболеваний, повышения производительности труда. Так как наука учитывает не только анатомию, но и психологию человека, эстетическое обустройство среды имеет немаловажное значение.
Эргономика в дизайне интерьера
То, как человек преобразует свое жилье, говорит о нем много. Наличие либо отсутствие определенных вещей в доме, их назначение, стилистическое исполнение, внешний вид он выбирает сам. Эргономика – это не только эстетика, но и практичность, максимальный комфорт.
Многие квартиры, особенно построенные в советское время, построены по принципу «лучше, чем ничего» — это помещения, которые строились для временного проживания, но полноценно действующие не первый десяток лет. В современном времени, человеку требуется разместить в жилом помещении намного больше вещей, предметов, обеспечивающих комфортное существование, чем тогда.
При самостоятельном ремонте без составления проекта, с обязательным указанием необходимых нюансов, сложно правильно рассчитать, где, что будет стоять, лежать, висеть.
Эргономичное устройство человеческого быта стремиться соответствовать определенным принципам:
- все предметы находятся на своих местах – тех, которые удобны конкретному человеку, семье;
- свобода перемещения – возможность свободно ходить из помещения в помещение, не наталкиваясь на предметы интерьера;
- в доме не нужно иметь много лишнего – захламленная квартира выглядит чрезмерно тесной;
- желательно приобретать функциональную мебель – складную, раздвижную, с многочисленными местами для хранения;
- правильное зонирование помещения позволит соблюсти максимальную эргономику;
- освещенность разных комнат, зон, должна соответствовать функциям помещения, осуществляемой в нем деятельности, для сохранения физического, психического здоровья.

Расстановка мебели в помещении
Для правильной расстановки мебели в интерьерном пространстве существуют некоторые правила:
- проходы между предметами меблировки оставляют 70-100 см;
- в маленьком помещении ставят минимальное количество мебели, размещая большую ее часть вдоль стен;
- кухонное оборудование для тесного помещения встраивается в гарнитур;
- мебель-трансформер часто сочетает два-четыре различных предмета интерьера, которые по отдельности заняли бы целую комнату;
- крупная объемная меблировка подойдет просторным комнатам, чрезмерно загромождая маленькие.
Прихожая
Чем больше людей живет в квартире, тем шире делается прихожая. Одному-двум жильцам достаточно 90 см, для безопасного перемещения семьи из трех человек требуется как минимум 100-110 см. Если сюда планируется поставить шкаф для одежды, то учитывают его глубину. Для компактного размещения обуви приобретают вертикальные стационарные полки – одновременно на такой разместится до двадцати пар.
Подвесные настенные органайзеры для хранения ключей, расчесок, предметов косметики, сделанные из текстиля, заменят объемные полки.
Ванная и санузел
Совмещенный санузел сэкономит два-три квадратных метра территории квартиры, но будет не слишком удобен, если в ней проживает большая семья. Когда в семье есть маленькие дети, пожилые люди, инвалиды, сама ванна снабжается поручнями, двумя-тремя ступеньками, если позволяет место. Еще безопаснее установить душевую кабину – поддон у нее низкий, риск утопления отсутствует. Перед унитазом в раздельном санузле оставляют достаточно места для открывания-закрывания дверей, в крайнем случае, его делают подвесным, ставят боком. В совмещенном санузле расстояние между предметами составляет не менее 50 см.
Кухня и столовая
Кухни многих старых квартир проектировались тогда, когда это пространство считалось исключительно местом готовки пищи, размещения холодильника, газовой плиты, крошечной рабочей поверхности.
Многообразие современной техники в такой кухоньке разместить проблематично, поэтому она выбирается малогабаритная, встроенная. Гарнитур покупается немного уже стандартных моделей, что позволяет относительно легко перемещаться по кухне. Шкафчики, навесные полки размещают везде, где возможно – до самого потолка, подоконник легко станет дополнительным рабочим столом. Места для хранения посуды, прочей кухонной утвари находятся в специальных секциях под компактным угловым диванчиком. Когда в кухне есть утепленный балкон, лоджия, перегородка также частично убирается. На лоджии размещается обеденная зона, столешницей становится подобие барной стойки на месте, где был подоконник.
Барной стойкой отмечается середина кухни-гостиной, если их решено объединить, снеся частично, полностью перегородки. Места становится немного больше – столовая зона размещается в той части, где была гостиная или посредине.
Расстояние между предметами кухонной меблировки должно составляет не менее 70 см, для безопасного перемещения.
Посуда, утварь, предметы ежедневного пользования располагают «под рукой».
Гостиная
Современная гостиная – не только место, для отдыха всей семьей, с друзьями, но и весьма многофункциональное пространство. Часто здесь имеется несколько спальных мест, рабочий кабинет, место для приема пищи, пара шкафов.
Загромождать центр комнаты не следует – небольшим стеллажом отгораживают место сна, рабочий угол, но перемещение по гостиной должно быть свободным. Между предметами соблюдают расстояние хотя бы 70 см. Не менее 50% пространства данной комнаты оставляют свободным от мебели. Если комната тесновата, вместо объемных кресел ставят один складной компактный диванчик.
Телевизор – визуальный центр комнаты, смотреть предпочтительно с расстояния, составляющего три-четыре его диагонали. Относительно данного центра, меблировку размещают симметрично. Если полную симметрию соблюсти не удается, пойдет частичная, главное, чтобы все части помещения гармонировали, сочетались между собой.
В комнате желательно определить «перспективу» — обозначить передний, задний план.
Когда в гостиной, после размещения необходимого, осталось еще два-три метра квадратных, там располагают столовую зону. Она состоит из стола размером 60 на 120 см, трех-четырех стульев, или откидной барной стойки с парой высоких стульчиков.
Кресла, стулья, диван не ставят «спиной» к входу – это вызывает дискомфорт у тех, кто там сидит.
Спальня
Спальня – место для отдыха, которому также свойственна эргономичность. Ходят здесь меньше, чем в других помещениях, но лишние вещи тоже не нужны. Кровать, размещаемая обычно по центру одной из стен, одна-две прикроватных тумбочки, бельевой шкаф или комод. Часто здесь размещается гардеробная зона, отгораживаемая шкафом или раздвижной ширмой – перемещению по комнате она мешать не должна. Для тесных помещений приобретают компактный, высокий угловой шкаф со светодиодной подсветкой. Иногда в спальне размещается своеобразный «рабочий кабинет» — письменный, компьютерный стол, с полками, выдвижными ящиками, для хранения канцелярских принадлежностей гаджетов, аксессуаров.
Эта зона размещается на максимальном удалении от спального места.
Детская
Основной принцип обустройства детской – безопасность. Здесь не должно быть острых углов, о которые ребенок способен удариться, скользкого пола, неудобно лежащих ковриков, за которые можно зацепиться, упасть. При размещении в одной комнате двух и более детей, каждому выделяют хотя бы минимальное личное пространство. Если детская имеет скромные размеры, то в ней размещают двухъярусную кровать, на которой, в зависимости от модели, может спать от одного до четырех детей. Меблировка этой комнаты должна занимать не более 30% пространства, чтобы ребенок мог нормально физически развиваться, бегая, играя. Около одной из стен размещают компактный спортивный уголок – шведская стенка с турником, подвесными кольцами, канатом. Для тесных помещений конструкция предпочтительна разборная, съемные качели вешают на перекладину, закрепленную в дверном проеме – она исполняет роль турника для подтягивания.
Многие компании предлагают мебель, которая «растет вместе с ребенком» — регулируется по высоте, длине.
Кабинет или рабочее место
В рабочем кабинете ничто не должно отвлекать от продуктивной трудовой деятельности. Отдельную комнату для этих целей могут позволить себе не все, но когда человек основную часть работы или всю полностью делает удаленно, из дома, то максимально обособленное пространство необходимо. Рабочий стол, стул выбирается удобной высоты, желательно хорошо освещается дневным светом с улицы или искусственным. Предпочтительно, чтобы свет падал спереди или слева, но при работе за компьютером не давал бликов на мониторе. Верхняя, локальная подсветка также необходима.
Советы по организации удобного пространства
Как самостоятельно создать эргономичный интерьер:
- основой пространства квартиры являются стены, пол, потолок – они оформляются в стилистике, единой для всей квартиры, слегка различаясь в разных ее помещениях;
- каждая комната обустраивается в зависимости от ее назначения – в спальне спят, в гостиной – принимают гостей, в кабинете – работают.
Цветовое решение также должно соответствовать виду помещения – в спальне предпочтительны успокаивающие тона, кухне – способствующие аппетиту, пищеварению, рабочем кабинете – сосредоточению на поставленных задачах и др.; - не нужно держать дома ничего лишнего – одежду, которая годами висит в шкафу ни разу не надеваясь, сдают в комиссионку, раздают бедным, кучку пыльных сувенирчиков – «передаривают», складывают на антресоли, оставив на виду лишь самые любимые. В гараж, подвал, кладовку убирают редко используемые инструменты, домашнюю утварь;
- правильно организовать места хранения вещей повседневного пользования – детские игрушки складывают в пластиковые контейнеры с крышками, после их ставят друг на друга. При нехватке пространства в шкафах, в такие же коробки складывают различные аксессуары, мелкие предметы одежды, белье;
- меблировка не должна быть чрезмерной, чтобы в каждой комнате ей было занято не более половины общей площади, а между предметами не возникало проблем с перемещениями;
- использование «умной» мебели значительно экономит пространство – шкаф-диван, двухъярусная шкаф-кровать, откидная двуспальная кровать, стол-кровать, кровать-чердак, модульные кухонные гарнитуры.
Существует также множество моделей со встроенными зарядными устройствами для гаджетов, дверками, которые открываются-закрываются с помощью пульта и др.; - соблюдение чистоты, порядка – важнейшая составляющая эргономичного дома. Одежда развешивается в шкафах или складывается в корзину, для последующей стирки, канцелярские принадлежности и бижутерия размещаются в специальных органайзерах, пустая пластиковая, стеклянная, бумажная тара выкидывается в мусоропровод или сдается в специальные пункты.
Заключение
Чтобы жилье стало максимально эргономичным иногда достаточно просто убрать лишние предметы декора, а старую тяжелую мебель заменить на компактную современную. Все находящееся в квартире тщательно подбирается по назначению, форме, цвету – только так возможно создать гармоничный интерьер. Когда вопрос правильного обустройства помещения не получается решить самостоятельно, следует обратиться к профессиональному дизайнеру или использовать специальные 3D конструкторы, работающие в онлайн режиме на многих сайтах, посвященных ремонту.
Правила эргономики интерьера
Эргономикой интерьера называют самостоятельную дисциплину, изучающую как психологические, так и внешние факторы создания комфортной атмосферы в помещениях. Недостаточно иметь хороший вкус и чувство стиля, чтобы разработать оптимальное для жизни оформление комнаты – для этого необходимо знать о практической составляющей каждого элемента интерьера, а также иметь представление о влиянии дизайна и цветовой гаммы на эмоциональное состояние человека.
Индивидуальный фактор
В создании нового проекта дизайнеры интерьера в первую очередь основываются на особенностях физиологии и мышления своего клиента: к примеру, если он страдает от избыточного веса и боится темноты, они не будут оставлять полуметровые проходы между мебелью и использовать точечные источники света.
Из столь грубого, но наглядного примера можно понять, как важно учесть индивидуальный фактор в оформлении квартиры или одной комнаты. Несмотря на то, что в любых условиях человек может приспособиться, лучше избавить его от этой необходимости, используя проверенные методы и закономерности. Услуги дизайнера интерьера могут обойтись дорого, однако любые затраты стоят личного комфорта и домашнего уюта.
Важность грамотного освещения
Работая с любой планировкой и количеством окон в комнатах, можно создать интерьер, в котором большую часть дня не придется использовать искусственные средства освещения. В крупных помещениях стоит главную роль отдавать естественному свету, так как он гораздо полезнее для восприятия, а покупка и монтаж светильников, а также затраты на электроэнергию обойдутся довольно дорого при любом бюджете. Говоря о советах для конкретных комнат, стоит напомнить о том, что:
- в кабинете освещение должно быть ярким, а положение источников света должно исключать тени от предметов и человека на рабочей поверхности;
- на кухне не стоит вешать плотные шторы – они будут блокировать дневной свет, покрываться налетом и впитывать запахи; искусственное же освещение стоит разделить между несколькими небольшими источниками, чтобы с комфортом осуществлять различные этапы приготовления пищи;
- в спальне и среднегабаритной гостиной будет уместным приглушенное освещение, которое может создать небольшое число светильников или бра, электронный или настоящий камин.

Вопросу освещения уделяют особое внимание, поскольку от его качества напрямую зависит продуктивность владельцев, их настроение и психологическое состояние, а также как будет смотреться цветовая палитра и общая композиция с художественной точки зрения. Подобные вопросы легко решить, обратившись в студию дизайна интерьера MYHOME, где специалисты как разрабатывают уникальные дизайны проекты интерьера, так и занимаются более практичными задачами.
Несколько простых правил
Существуют на первый взгляд очевидные закономерности, на которые очень часто дизайнеры не обращают внимание, обрекая своих клиентов на неудобства и недостаточно комфортное использование предметов интерьера. По этой причине стоит ознакомиться с элементарными законами планировки и оформления самостоятельно.
- Передвижение по дому. Какой бы шикарной ни была мебель, она не должна мешать передвигаться по комнатам всем членам семьи – минимальная ширина проходов составляет 70 сантиметров, для людей пожилого возраста, инвалидов и больных – значение увеличивается до 1 метра.
- Комфортный отдых. Комнаты, где можно поспать, отдохнуть или заняться личными делами (спальня, гостиная, детская), чаще всего делят на несколько зон для более удобного и практичного использования. Сделать это можно при помощи ширм, книжных стенок, драпировки или же грамотной расстановки мебели.
- Организация сна. Наиболее важное место для возобновления сил должно быть тщательно оборудовано – габариты кровати выбирают с запасом в зависимости от роста и привычек владельцев, помещают ее в возле стены или окна с расстоянием в 1 метр, рядом с кроватью следует разместить тумбочки или полки для будильника, книги и прочих необходимых мелочей.
- Кухонная геометрия. Близкое расположение холодильника, плиты и раковины называют правилом «рабочего треугольника». Такое решение действительно сокращает время приготовления пищи, и освобождает пространство для создания столовой.
- Обеденный стол. В больших семьях популярны круглые столы – их сложнее установить в малогабаритных комнатах, однако в случае удачи появляется много места для сервировки.
- Аксессуары в ванной комнате. Чтобы домочадцы могли быстро осуществлять утренний и вечерний туалет, сантехника должна находится рядом с зеркалом и мебелью, в которой хранятся полотенца, белье и бытовая химия.
- Рабочее пространство. В кабинете или мастерской все должно мотивировать к действию и повышать эффективность работы. Наиболее важные инструменты и предметы стоит расположить под рукой, все остальное – систематизировать.
- Детская. Для ребенка стоит выбирать мебель с функцией трансформации – такое решение сэкономит свободное место и позволит использовать гарнитур в разном возрасте малыша.
- «Зона дверцы». Большинство предметов мебели и некоторое оборудование имеют дверцы ли крышки. Размещать такие элементы в интерьере стоит так, чтобы было удобно их использовать, а дверцы не мешали и не преграждали проход.
- Прихожая. Как правило, из-за небольшого размера в коридоре находится наиболее некомфортно, чтобы компенсировать неудобства, нужно очень тщательно продумать положение дверей в открытом и закрытом состояниях, учесть наличие вешалок и сидений, ширины прохода, в котором должны свободно проходить двое людей.
Никто не спорит с тем, что гораздо проще не читать специализированную литературу и посещать мастер-классы по оформлению интерьера, а обратиться за помощью в любую студию дизайна интерьера Москвы. Однако даже выбирая среди лучших, можно ошибиться и доверить создание домашнего уюта любителям, поэтому прежде чем заказать дизайн проект, стоит изучить предыдущие работы конкретной команды или же заказать дизайн интерьера в профессиональной и опытной студии MYHOME.
Эргономика в дизайне интерьера
Эргономика в дизайне интерьера: 10 правил удобного пространства
Эргономика отвечает за создание комфортного интерьера, который будет соответствовать особенностям конкретного человека. В этой науке сочетаются знания о психологии, анатомии и другим дисциплинам, что позволяет создать по-настоящему гармоничное и безопасное жилище с тщательно продуманными деталями. Эргономика в дизайне интерьера отвечает за обустройство грамотного освещения, подбор подходящей мебели, адекватное зонирование пространства. При оформлении квартиры необходимо учитывать образ жизни, привычки, характер, а также физиологические особенности ее обитателей, — именно этот принцип считается главным для этой науки.
Принципы эргономики при проектировании спальни
Свобода передвижения Основные эргономические законы просто необходимо использовать при создании интерьера спальни, ведь от того, как расставлена мебель и создано освещение этой комнаты, зависит качество отдыха человека. Так, для комфортного передвижения и нахождения в помещении важно учитывать следующие правила:
- Ширина основных проходов комнаты должна составлять не менее 70 сантиметров, при этом для лиц пожилого возраста этот показатель увеличивается до 1 метра.
- Проход от двери к кровати или к окну должен быть максимально прямым.
- Мебель не должна иметь опасных углов или слишком выпирающих деталей, что особенно актуально для квартиры с маленькими жильцами.
- Шкаф следует располагать в дальнем углу, не нужно выставлять его на всеобщее обозрение в центре комнаты. При этом слишком громоздкую мебель лучше оставить для прихожей.
Как поставить кровать, чтобы не жаловаться на сон?
Кровать можно смело назвать главным предметом интерьера в спальне, поэтому ее расположению следует уделить особое внимание. Считается, что самым подходящим местом для такой мебели является пространство возле окна. Важно, чтобы кровать была обособлена от других предметов интерьера, а также располагалась подальше от батареи. Кроме того, хорошо знакомые с принципами эргономики дизайнеры дают следующие советы:
- Кровать должна находиться не менее чем в полуметре от наружной стены. Располагая ее параллельно окну, следует увеличить это расстояние до 80 сантиметров.
- Если вы выбрали двуспальную модель, то необходимо оставить проходы с обеих сторон.
- Кровать должна подходить по размерам своим хозяевам.
- Если вы любите читать перед сном, то для удобства следует позаботиться о наличии специальной спинки на вашей мебели.
- В целях безопасности не стоит устанавливать полки у изголовья кровати.
Эргономика в дизайне рабочей зоны-как удобно работать за столом?
Грамотное оформление кабинета является необходимым для успешной деятельности, поэтому для создания комфорта в этом помещении стоит учесть принципы эргономики. Так, высота стола и стула должна определяться ростом и особенностями строения конкретного человека. Ящики не стоит располагать слишком низко, лучше всего разместить их на уровне колен. Чтобы комфортно работать за компьютером, нужно купить такой стол, который оставлял возможность положить локти на его поверхность.
Да будет свет!
Освещение играет огромную роль в вопросе комфорта, а потому в эргономике данному аспекту уделяется особое внимание. В кабинете следует разместить светильники таким образом, чтобы тело не отбрасывало тень на рабочее место. При этом свет должен быть достаточно комфортным и не слепить, поэтому не стоит выбирать стол с эмалированной поверхностью. Большинство дизайнеров сходятся во мнении, что самым подходящим для рабочей зоны является максимально естественное освещение.
Эргономика при создании интерьера кухни
Место, где происходит готовка и прием пищи, должно быть не только эстетически привлекательным, но и максимально комфортным и практичным. Правильное расположение бытовой техники и мебели является необходимым условием для создания идеальной кухни, где с радостью будет проводить время не только хозяйка, но и ее гости. Для этого необходимо учесть следующие эргономические принципы:
- для удобного расположения за столом человеку необходимо около 60 сантиметров пространства;
- подвесные элементы следует располагать таким образом, чтобы их нижний край находился на уровне примерно полутора метров от пола;
- ширина проходов в этом помещении должна составлять не менее 60 сантиметров.
Правильная планировка кухни
Расстановка мебели осуществляется с учетом особенностей конкретного помещения. Для длинной и узкой кухни подойдет линейная компоновка, при которой все предметы интерьера размещаются вдоль одной стены. Кроме того, эта планировка нередко используется для дизайна студии или соединенного с гостиной помещения. Что касается большой по размеру кухни, то в этом случае можно использовать параллельную или Т-образную расстановку мебели, а для небольшого пространства подойдет угловая или П-образная компоновка.
https://youtu.be/E81zAqZbOpU
Поделитесь с друзьями! Нажмите кнопки соцсетей! Рекомендуем прочитать!Эргономика в дизайне интерьера: 10 правил удобного пространства
Манера обустройства жизненного пространства позволяет раскрыть характер и особенности человека. Расположение предметов, их размеры, сочетание, функциональность и стиль формируются в соответствии с предпочтениями хозяев. Эргономика в дизайне интерьера позволяет насытить помещения не только эстетической красотой, но и максимальной практичностью.
Главным правилом, которым пользуется эргономика, является комфорт, который ощущается от повседневного использования своего жилья. Для достижения этого эффекта необходимо следовать конкретным правилам. Давайте определим, каким критериям должно соответствовать жилье современного человека.
Эргономика в интерьере спальни
Эргономичный дизайн интерьера
Эргономичный дизайн комнаты
Квартиры в городе построены с учетом экономии места. В условиях малометражек очень трудно разместить все детали для комфортной повседневной жизни. Полезные советы специалистов по эргономике и выбору мебели помогут сделать просторным и функциональным даже маленькое помещение.
Определите жилую площадь дома и рассчитайте количество предметов интерьера, которые нужно в нем разместить. Когда ремонт делается с нуля, хозяева часто забывают о месте под стиральную машину, холодильник или не заботятся о достаточном количестве закрытых полок для хранения вещей. Таким образом, лишние предметы приходится «ютить» произвольно, что доставляет существенное неудобство.
Эргономика в интерьере гостиной
Планировка эргономичного дизайна квартиры
Обратите внимание на новинки смарт-мебели.
На рынке есть новые модели раскладных стола, кровати, книжных полок и шкафчиков, который вписываются в пространство так, что с первого взгляда их не замечаешь. Такие предметы можно не только покупать, но и делать своими руками или на заказ.
Уберите все лишнее
Бывает, даже в красиво обставленной комнате чувствуешь себя неловко. Причиной тому – большое количество вещей, выставленных напоказ. К примеру, старая традиция собирать сувениры и статуэтки, которые пылятся на полках и никак не украшают интерьер.
Схема эргономичного дизайна квартиры
Эргономичный дизайн комнаты
Эргономичный дизайн интерьера
Соблюдайте порядок
Чистота является незаменимым помощником эргономики. Из-за спешки мы часто разбрасываем вещи и банально захламляем пространство. В неубранной квартире человек подсознательно ощущает дискомфорт и не может сосредоточиться.
Подбирайте верные сочетания мебели Основное место в квартире занимает мебель. Когда разные предметы интерьера взяты из несочетающихся комплектов, то это создает визуальный диссонанс. Создается ощущение, что вы собрали свой интерьер «из того, что было».
Обратите внимание на цвета
Слишком пестрая квартира в плане сочетания оттенков и текстур вызывает дискомфорт для человека. В подобных условиях наш мозг не может собрать все в единую композицию.
Эргономика в интерьере кухни
Пример эргономики в дизайне интерьера
Располагайте элементы мебели с сохранением пространства
Выбирайте такие варианты мебели, которые максимально сохраняют свободное место и позволяют хранить больше предметов. Они должны идеально вписываться в интерьер и размеры помещения.
Для нестандартной планировки – индивидуальные решения
Покупать все в магазине – не лучший вариант, если у вас нестандартная квартира. В условиях полного отсутствия идей, перепланировку лучше доверить дизайнеру.
Не забудьте об аксессуарах
Перебор с большим количеством мелких и нефункциональных аксессуаров можно изменить в лучшую сторону, если обустроить помещение с применением практичных вещей.
Эргономичный дизайн интерьера
Эргономика в интерьере комнаты
Эргономичный дизайн комнаты
Оформляйте комнаты в соответствии с их назначением
Многие проблемы эргономики решаются, если при обустройстве владелец учел все требования правильного зонирования пространства. У каждой зоны есть свое назначение. Функциональный дизайн позволит создать эргономичный образ.
Минимальные требования к устройству жилого дома
Существует ряд закономерностей, соблюдение которых позволит добиться улучшений.
- Если начинать с прихожей, даже в узком коридоре есть зазоры в 30-30 см. Этого места достаточно, чтобы установить компактную продолговатую обувницу – и место занято, и передвижению не мешает.
- Ширина прохода во всех комнатах должно быть не меньше, чем в 70-100 см. Доступ к функциональным предметам интерьера должен быть открытым.
- Не допускайте нагромождений мебели. Старайтесь спрятать изъяны при помощи хитростей: стола с потайными ящиками, дополнительными шкафчиками полками в шкафу и т.д.
- Каждую зону выделит свет и фактура материалов. Используйте стилистическую игру, но придерживайтесь единой композиции.
Стандартные правила создают лишь модель. Эргономика требует, чтобы интерьер максимально соответствовал потребностям каждого жильца. Для человека важно наличие всего необходимого, правильное расположение предметов, эстетика и комфорт. В жилом доме есть место для благоустройства любой зоны – кухни, столовой, прихожей, гостиной, спальни, санузла и рабочего места. Старайтесь выбирать предметы, которые меньше собирают пыль и позволяют обеспечить быструю уборку.
Схема эргономичного дизайна квартиры
Эргономика в интерьере комнаты
Стандартная планировка жилья в новой квартире учитывает некоторые требования. Эргономика прослеживается в расположении помещений. К примеру, на входе в квартиру оставляют больше места под прихожую, затем ближе ко входу находится прихожая и кухня. Место для приема кухни обустраивается в уютном уголке. Зона отдыха, сна и работы, как и санузел, находится в удалении от входа для максимального комфорта. Важно чтобы площадь жилища соответствовала количеству проживающих здесь людей.
Ширина и высота прохода должна соответствовать габаритам человека. Выделить отдельные зоны в комнате поможет контраст цветов в отделке и правильно поставленный свет. Удобство в использовании мебели обеспечит отсутствие большого количества острых углов и правильно открывающиеся дверцы. Организуйте пространство в соответствии со своими предпочтениями и чувствами. К примеру, если вам некомфортно сидеть спиной к двери, то не ставьте рабочее место возле стены.
Эргономичный дизайн интерьера кухни
Эргономичный дизайн комнаты
Эргономика в интерьере комнаты
Эргономика зоны отдыха
Расположение предметов в зоне отдыха человека способствует расслаблению. В этом уголке все направлено на «релакс». Для достижения оптимального эффекта установите теплый пол, ворсистые напольные покрытия, мягкий свет при помощи лампы или бра. В зависимости от предпочтений, здесь устанавливают книжные шкафчики, софы, кресла или диваны.
Хорошо, когда с места отдыха открывается обзор на улицу. Наблюдение за окружающим миром важно для человека, он может в спокойной обстановке подумать, отвлечься и сосредоточиться. Лучшим решением для зоны отдыха является мягкая мебель и приглушенные тона.
Пример эргономики в дизайне интерьера
Эргономичный дизайн интерьера
Эргономика рабочего места
Антиподом места для отдыха человека является рабочая зона. Здесь все направлено на активизацию. Подумайте о расположении стола. Стиль мебели должен соответствовать стилю всех предметов быта. Не допускайте сочетаний модерна и классики в дизайне рабочего места. Обеспечить комфорт позволит правильная высота стола и стула.
Длительное сидение человека за компьютером компенсируется удобством спинки кресла. Выбирайте мебель, размеры которой соответствуют количеству рабочих приспособлений (канцелярских принадлежностей, техники, документов и т.д.). Освободите низ для комфортного положения ног. Лучшим вариантом является выделение отдельной комнаты для обустройства личного кабинета.
Эргономичный дизайн комнаты
Эргономика в интерьере комнаты
Эргономика в схеме квартиры
Эргономика зоны сна
В благоустройстве места под сон необходимо использовать минимум деталей. Освободите место для отдыха и расслабления. Если в зоне сна не нашлось места для кровати, то желательно установить удобную софу или раскладывающийся диван, что особо актуально для малометражных квартир. Он будет учитывать размеры пользователя и обеспечит практичность. У изголовья стоит установить точечный свет. Спальное место на двоих предполагает обустройство широких проходов с обеих сторон кровати. Подберите нейтральный цвет стены, успокаивающий нервную систему для быстрого засыпания.
Выделите для кровати ключевое место. Лучше расположить ее изголовьем у стены. Со спального ложа нужно открыть обзор на дверь и окно. Высота и длина кровати должна соответствовать размерам человека и необходимому количеству спальных мест. Покупайте кровати без острых углов и с закрытым низом, плотно прилегающим к полу, чтобы пыль не оседала в труднодоступных зонах. Для экономии пространства установите ложе с встроенными функциональными ящиками для постельного белья и покрывал, но не монтируйте полки с острыми углами над головой.
Эргономичный дизайн комнаты
Эргономика в интерьере комнаты
Эргономика обеденной зоны
Дизайн интерьера кухни влияет на скорость приготовления пищи и комфорт, с которым пища употребляется. Эргономика этого помещения обеспечивается подбором продуманной мебели. Подберите готовый гарнитур, сочетающий в себе удобство, простоту и функциональность. Важным аспектом в повседневном использовании комнаты является площадь столешницы для стола. Это рабочее место, размеры которого позволяют разместить всю технику и кухонные принадлежности. Новинкой для смарт-квартиры считается встроенная кухня, в которой спрятаны предметы быта.
Эргономика столовой и кухни предполагает наличие достаточного места для расположения полноценного обеденного стола (60 см для каждого человека) и комфортного передвижения. Помещения обязательно оборудуются холодильником, плитой, раковиной и ящиками под хранение утвари. Стены комнаты окрашиваются тонами, способствующими аппетиту. Высота потолка позволяет установить общий свет, а над рабочей поверхностью обустроены дополнительные лампочки. Пол отделан плиткой, а для дизайна интерьера использованы практичные детали.
Современная эргономика поможет оживить и создать комфорт в условиях любого пространства. Проявите фантазию и творчески отнеситесь к благоустройству каждой комнаты. Воспользуйтесь готовыми решениями в дизайне помещения, и вы получите отличный результат!
Видео: Эргономика в дизайне интерьера
50 фото идей эргономичного дизайна интерьера:
Базовые принципы эргономики в интерьере
Помимо внешнего вида при создании дизайна интерьера пристальное внимание всегда уделяется удобству и функциональности. В своем собственном жилье в первую очередь должно быть комфортно, во внутреннем убранстве ничего не должно представлять угрозу для здоровья и психического состояния человека. Именно о создании комфортного интерьера, в котором будут отражены особенности и пожелания конкретного человека, заботится такая наука как эргономика.
Это довольно сложная дисциплина, которая сочетает в себе знания и о психологии, и об анатомии, ведь гармоничное и безопасное жилье должно быть спроектировано с учетом психофизиологических особенностей его владельцев. Учитывать принципы эргономики необходимо буквально на каждом этапе создания дизайна интерьера, при осуществлении зонирования, при обустройстве системы освещения, при подборе мебели и при выполнении декорирования. Образ жизни и характер хозяев также обязательно должны быть учтены при оформлении квартиры или дома, потому современные дизайн-проекты и носят индивидуальную направленность.
Существует достаточно большое количество правил эргономичной организации жилого пространства, направленных на создание обстановки, в которой будет удобно и безопасно. Но есть некоторые базовые принципы эргономики в дизайне интерьера, запомнить которые довольно просто, зато знание этих элементарных правил поможет сделать жилье гораздо более комфортным, а не только красивым.
Эргономика спальни – расположение кровати
Удобство спальной комнаты всегда обусловлено правильной расстановкой мебели, и отнюдь не размерами помещения, как ошибочно полагает большинство. Причем правила эргономики для расположения кровати, шкафа, туалетного столика и остальных предметов мебели в спальне одинаковы для всех стилевых направлений.
Одно из первостепенных правил эргономичной организации спальни – это комфортное передвижение по комнате. Для этого ширина всех основных проходов должна составлять не менее 70-80 сантиметров, а в спальне пожилых людей – не менее 100 см. Прежде всего речь идет о свободном пространстве с каждой из сторон кровати, за исключением изголовья, которое упирается в стену.
И сколь ни был бы велик соблазн максимально придвинуть кровать одной из сторон к стене, при этом сэкономив место, делать это крайне не рекомендуется. Даже в самой маленькой спальне должна оставаться возможность подойти к двуспальной кровати с двух сторон. В крайнем случае, если комната совсем уж маленькая и придвинуть кровать к стене все же придется, достаточное количество свободного места должно остаться в изножье.
Относительно размеров кровати – приобретать мебель в спальню и в принципе в любую другую комнату необходимо исходя из размеров помещения. Таким образом, если речь идет о совсем небольшой спальной комнате площадью около 10 квадратных метров, то оптимальный размер кровати здесь 1,4 или 1,6 на 2 метра.
Эргономика кухни – правило рабочего треугольника
Золотое правило организации рабочей зоны на кухне давно известно очень многим, хотя придерживаются его по-прежнему далеко не все. Тем временем именно такая организация рабочего пространства на кухне позволит сделать процесс приготовления пищи наиболее удобным и быстрым.
На кухне можно выделить три основных функциональных зоны:
- Зона для хранения продуктов – основной элемент в этом случае холодильник;
- Зона для подготовки продуктов – мойка и разделочная поверхность в непосредственной близости от раковины;
- Зона для готовки – плита, духовой шкаф и т.д.
Суть правила рабочего треугольника в том, что три главных кухонных элемента, без которых эта комната немыслима – плита, мойка и холодильник – располагаются таким образом, чтобы расстояние между ними не превышало 2,7 метра и не было меньше 1,2 метра. В сумме же расстояние между тремя этими предметами варьируется от 4 до 8 метров максимум.
При таком расположении функциональных кухонных зон минимизируется перемещение по кухне, что значительно упрощает процесс приготовления. Следует помнить о том, что, если придерживаться правила с точностью не получается ввиду совсем маленьких размеров кухни, все же стоит постараться не совмещать три этих зоны. К примеру, совершенно неудобно и не рационально располагать плиту прямо возле мойки или ставить рядом с плитой холодильник.
Расстановка мебели и зона открывания
Задаваясь вопросом: как расставить мебель в квартире, следует учесть самое главное правило, которое актуально для любой комнаты: мебель не должна мешать передвигаться по квартире или дому. Если журнальный столик будет постоянным барьером, который нужно перешагивать или на который беспрестанно все натыкаются и зарабатывают синяки и ушибы, то рано или поздно он станет самым ненавистным предметом для всех жильцов.
Также актуальным для любой комнаты является принцип, согласно которому мебель подбирается в соответствии с размерами помещения. К примеру, не самая удачная идея устанавливать в маленькой спальне, площадью 9 квадратов, большой комод на полстены. Для небольшой комнаты вместо грузной солидной мебели лучше продумать встроенные системы хранения и в целом выбирать предметы мебели относительно небольшого размера.
Еще одно обязательное правило – это правило зоны открывания. Суть его заключается в том, что для любой распахивающейся дверцы или любого выдвижного ящика должно быть достаточно места. Совершенно немыслимо устанавливать мебель таким образом, чтобы не было возможности полностью выдвинуть ящик или открыть дверь шкафа.
Эргономика прихожей
Незаслуженно обустройству этой комнаты зачастую уделяют совсем мало внимания. А все-таки это та комната, куда первым делом попадают гости, да и сами жильцы, кроме того чаще всего именно здесь собираются перед выходом домочадцы. Потому неудобная или захламленная прихожая вполне может стать причиной плохого настроения и раздражительности.
Рассчитать ширину прохода в прихожей необходимо таким образом, чтобы в ней свободно могли развернуться два человека. Если дверь распахивается в комнату или попросту отсутствует – достаточно метра или 90 сантиметров. Но если дверь открывается в сторону коридора, потребуется около 1,5 метра.
Обязательно необходимо оставить в прихожей достаточное количество места для того, чтобы человек мог беспрепятственно надеть или снять верхнюю одежду и разуться или обуться, не задевая при этом ничего локтями. Желательно позаботиться о наличии сидячего места для переобувания, чтобы не делать это на корточках или вниз головой.
Перейти в раздел Портфолио.
Перейти в раздел Стоимость.
Перейти в раздел Контакты.
;
Эргономика в дизайне интерьера
31 июл 2011,
Основой эргономики как науки является достаточно много смежных дисциплин: от анатомии человека до его психологии. Все они нацелены на то, чтобы в процессе общения с предметами у человека сохранялось бы хорошее здоровье, повышалась бы эффективность труда и просто, чтобы у него в течение всех суток было хорошее настроение.
Не стоит думать, что эргономика в дизайне ограничивается только изучением мебели: это не так. Современная эргономика изучает все составляющие зоны работы и отдыха человека: от падения угла света до температурного режима помещения. При этом, конечно, значительная роль отводится фактурным и цветовым сочетаниям. В общем – мелочей здесь не бывает.
Эргономика зоны отдыха
При проектировании мебели для отдыха важно отталкиваться от размеров человека, сидящего в расслабленной позе. Но при этом не стоит забывать и то, градус уклона спинки и сиденья не должны затруднять вставание с такой мебели.Обычно в любой зоне отдыха должен быть чайный столик: его высота должна обеспечивать свободный доступ к нему без вынужденного вставания с дивана или кресла. Должно быть достаточно только наклонить корпус и все – чашка кофе взята или поставлена. Также стоит учитывать, чтобы голени сидящего человека свободно располагались под столиком: для этого там должно быть достаточно пространства.
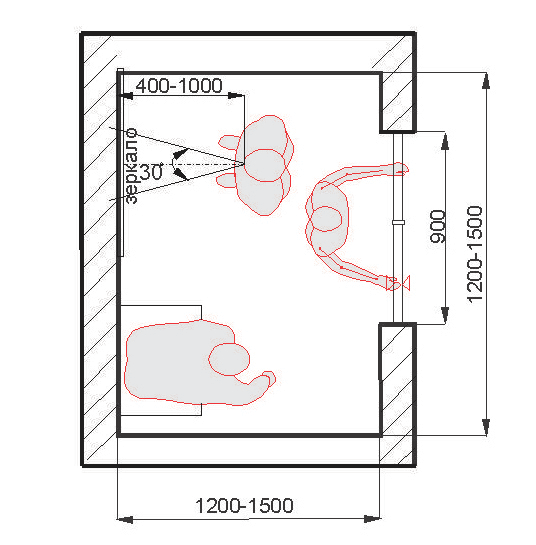
Часто в зоне отдыха располагают угловые диваны. Эргономика в дизайне советует в данном случае устанавливать их таким образом, чтобы человек, сидящий в углу, мог свободно расположить ноги и не мешать сидящим рядом. Ну, и какой же отдых без телевизора? Ученые советуют располагать телевизионный экран таким образом, чтобы на него можно было смотреть с боков не более, чем под углом в 30 градусов. Также и центр изображения должен находиться так, чтобы главный луч зрения, направленный на него, не отклонялся к низу на более, чем 7 градусов. Иначе взгляд будет напряженный и лучше будет экран повестить повыше или пониже.
Замечательно, если в современной зоне отдыха будет располагаться камин. Размеры камина должны быть прямо пропорциональны объему помещения и не допускать его перегрева. Также и небольшая зона перед камином не должна быть связана с размещением мебели.
Эргономика рабочего места
При организации рабочего места нужно отталкиваться от антропометрических параметров сидящего человека. Так, эргономика рабочего места за компьютером советует в первую очередь обратить внимание на длину голени работающего человека: именно она определяет высоту его стула. При этом важно, чтобы для спины человека была предусмотрена специальная спинная опора. Будет лучше, если вы выберите пояснично-подлопаточную или поясничную опору.Также эргономика рабочего места подразумевает анализ и рабочей поверхности стола: его высота, площадь и уклон должны определяться видом выполняемой работы. Обратите внимание, что при работе за компьютером у вас должна быть возможность положить на стол локти и достаточно свободно разместить необходимые для работы вещи. Ящики стола не должны находиться слишком низко: оптимально будет, если их нижний край будет располагаться не ниже коленей сидящего человека.
Кроме того, эргономика рабочего места за компьютером подразумевает, что за ваш компьютерный стол будет удобно усаживаться и вставать после работы. При этом поворотный стул дает много преимуществ по удобству эксплуатации и экономии места. Также позаботьтесь, чтобы все необходимые для работы предметы находились в непосредственной близости от стола, и чтобы вы могли ими воспользоваться, не вставая с рабочего места.
Очень важную роль занимает освещение рабочего пространства. Нужно обратить внимание на направление и силу падающего света. Тело человека и его инструменты не должны закрывать источник света и отбрасывать на стол тени, но в тоже время источник света не должен быть настолько ярким, чтобы слепить и раздражать глаза.
Кроме того, человеку при работе не должен мешать естественный свет из окна или блики раздвижных стеклянных перегородок. Также лучше не выбирать полированную рабочую поверхность: доказано, что свет от нее тоже отражается и слепит глаза.
Эргономика зоны сна
Эргономика в дизайне зоны сна должна начинаться с обеспечения удобного и комфортного места для ночного отдыха. Так, размер кровати должен, в первую очередь, определяться размерами своего хозяина. Также нужно учитывать, чтобы возможное устройство спинной опоры в изголовье позволяло приятно проводить время, например, за чтением книжки. Ширина кровати и устройство ее опорной системы должно способствовать легкой уборке постели, подойдя к ней вплотную.Вообще, зона сна должна быть удобной и практичной. Хорошо, если рядом с кроватью будет стоять небольшой столик. Эргономика дизайна сегодня не советует ставить кровать длинной стороной вдоль холодной, наружной стены здания. Также следует избегать, чтобы изголовье кровати было загружено полками и навесными шкафами: это некомфортно и не безопасно. Кроме того, не добавляет уюта помещению и расположение двух кроватей, направленных изголовьями друг к другу.
Эргономика обеденной зоны
Как и еда, эргономика в дизайне интерьера обеденной зоны, очень важна. Считается, что для принятия пищи одним человеком необходима длина стола из расчета 600 мм при радиусе в 300 мм. Но при этом также важно учитывать, что одно место нужно оставлять пустым: оно идет на запас около края стола. Кроме того, глубина стола должна определяться с учетом количества блюд и напитков, которые будут подаваться. Так, столы для повседневного пользования должны быть меньше, чем модели, предназначенные для праздничных и банкетных мероприятий.Мебель для сидения выбирается с учетом высоты стола и типа требуемой спинной опоры, который обычно определяется продолжительностью приема пищи. Например, дома это должна быть пояснично-лопаточная опора, в то время как в закусочных и бистро допустима поясничная или совсем без опоры.
Также желательно, чтобы дома прием пищи можно было производить в специально оборудованном помещении – в пределах кухни или гостиной. При этом доступ к посадочным местам должен был свободным, и у человека должна быть возможность во время еды спокойно, не причиняя неудобство другим, выходить из-за стола.
При обустройстве собственного жилья учтите наши рекомендации, и тогда вы, на самом деле, будете считать эргономику дизайна интерьера полезной и нужной наукой.
30+ самых важных цифр эргономики
Идеальные параметры мебели и расстояния между объектами, просчитанные учеными. Создаём вместе удобный интерьер квартиры: полезные советы и рекомендации от Квартблога.
Удобный интерьер квартиры
Эргономика — это наука, которая изучает взаимодействие человека с окружающим миром и разрабатывает стандарты для вещей, с которыми мы имеем дело. Если бы не эти стандарты, далеко не каждый стул был бы удобным и подходил к каждому столу по высоте. Однако значительную часть стандартов нужно соблюдать не при производстве мебели, а при ее расстановке и создании сценариев ее использования, а это уже задача дизайнеров и самих жильцов. Чтобы вы могли сделать свой дом максимально удобным, держите основные принципы и цифровые значения эргономики.
Расстояния
Самое главное, чтобы по интерьеру можно было свободно передвигаться — для этого важно соблюсти правильную ширину проходов. Проходы бывают основными и второстепенными. Основной — это, например, коридор по пути из комнаты на кухню, а второстепенный — проход между мебелью или у кровати. Ширина основного прохода — не меньше 100 см, а второстепенного — не меньше 50.
Расстояние между столом и стеной/другим предметом, чтобы было удобно садиться за стол и выходить из-за него, должно быть не менее 75 см. Если за вашей спиной кто-то должен будет еще проходить, чтобы пробраться на свое место, лучше оставить не меньше метра, а то и все 120 см.
Важно соблюсти расстояние перед шкафом: минимум 50 см., но не меньше ширины дверцы, если они у шкафа распашные. Хранить самые часто используемые вещи в шкафу или на стеллаже нужно в диапазоне от 70 до 180 см. от пола. На более низких/более высоких полках удобнее хранить редко используемые вещи.
Многих беспокоит вопрос, какое правильное расстояние между зрителем и телевизором. Высчитать его легко: не меньше двух диагоналей экрана. По этому же принципу стоит выбирать размер телевизора. Центр экрана должен находиться ровно на уровне глаз смотрящего, который в этот момент скорее всего сидит на диване или кресле, поэтому вешать телевизор нужно ниже, чем кажется гармоничным. Если низко висящий телевизор совсем коробит ваш взгляд, лучше поставить его на тумбу. Не забывайте и про угол обзора — смотреть телевизор нужно с угла не менее 45 градусов.
Еще на заметку: оставляйте около 10 см. между стеной с окном и мебелью, не только чтобы обеспечить нормальную работу радиатора, но и для того, чтобы свободно повесить шторы. И письменный стол в детской комнате ставьте не дальше 120 см от окна — это норма для здоровья детских глаз.
Мебель
Начнем с мебели для сидения. Высота может быть в диапазоне 36-42 см. Мебель для отдыха будет ниже: 36-40 см, — а высота рабочих и обеденных стульев повыше: 40-42 см. Ширина сиденья: у табурета минимум 32 см, у стула 40 см, у кресла 48 см, а одно посадочное место дивана не менее 50 см. Глубина сиденья (без учета спинки и прочего): стул минимум 40 см., кресло 55-60 см., диван 55-70 см.
Теперь стандарты для столов. Самая удобная высота рабочего или обеденного стола — 73-75 см. Рабочие столы на кухне имеют классический стандарт 85 см., и современный стандарт для людей ростом выше стандартного — 90-95 см. Барная стойка имеет высоту 100-120 см, а журнальный стол, если вы планируете ставить на него чашку чая или бокал вина, должен быть минимум 40 см. высотой.
Ширина одного посадочного места за обеденным столом: минимум 55 см. Если стол круглый, эти же 55 см. нужно измерять по хорде. В зависимости от того сколько человек вы хотите разместить за обеденным столом, и будет рассчитываться его идеальный размер. У рабочего стола тоже есть свой минимум для одного человека: 55 см глубина и 80 см ширина. Если хотите, чтобы за столом размещались двое, нужен стол минимум 160х55 (при размещении рядом в линию) или 135х80 (в этом случае люди будут сидеть под углом друг к другу).
Поговорим о шкафах. Глубина платяного шкафа сейчас имеет стандарт 60 см, но самая удобная глубина — не больше 56 см. Лишние сантиметры оставляют для навесных дверей и для того, чтобы на двери с обратной стороны тоже можно было что-нибудь повесить. Глубина может быть уже — 40-37 см, но тогда предусмотрена фронтальная загрузка одежды на специальные штанги. Минимальная глубина книжного шкафа — 15 см., а посудного — 33 см.
Кровати тоже имеют четкие стандарты. Высота от пола до поверхности матраса (не каркаса, а именно где вы лежите) — минимум 36 см., максимум 50 см. Более низкое и более высокое размещение возможно, но считается менее удобным, особенно для пожилых людей. Ширина бывает разной: не рекомендуемый минимум (на 1-2 ночи, как полки в поездах) — 70 см., односпальная кровать — 90 см., полуторка — 110 см, двуспальная минимум 140 см. Минимум по длине — 180 см., но рекомендуется все же стандарт 200 см. Подробнее обо всех параметрах читайте здесь: «Комфортная кровать: как выбрать размер».
У нас остались важные расстояния, высоты и размеры для кухни, прихожей и санузла — помещений, где эти стандарты важны, как нигде в другом месте. О них — в продолжении статьи, не пропустите!
Фотографии: mghomehealth.com, fritzhansen.com, connox.com
эргономика, планировкаОсновы эргономики интерьера — «Интерьер-Люкс»
Большинство людей, безусловно, мечтает о собственно жилье. При этом – не просто им владеть, а проживать в максимально комфортных условиях. К сожалению, но финансовые возможности многих наших граждан не позволяют приобретать квартиры или дома больших размеров. Поэтому их программа минимум заключается в покупке недвижимости небольших размеров. В подобной ситуации трудно рассчитывать на возможность создавать свое фамильное гнездышко без каких-либо ограничений, поэтому важно знать основы эргономики интерьера, которые помогут решить большинство возникших проблем.
Основные ошибки, совершаемые людьми в этой ситуации
Существует несколько основных ошибок, которые очень популярны среди людей, которые занимаются самостоятельным благоустройством своей квартиры или домика. Естественно, что в этом случае они не заказывают дизайнерское проектирование, которое поможет избежать подобных ситуаций.
Первая ошибка – попытка воссоздать что-то, не задумываясь о возможности такой реализации. Например, человек где-то увидел оригинальную конструкцию, которую решает воспроизвести в собственных условиях. Но оригинал можно увидеть в помещении с крупными пространственными размерами, а его воспроизвести пытаются в комнате совершенно не тех габаритов. Это приводит, как минимум, к достижению совершенно другого, отрицательного эффекта от подобной задумки, как максимум – созданию дополнительных неудобств для проживающих в квартире или доме жильцов.
Вторая распространенная ошибка – неправильное использование мебели и других предметов интерьера. Большинство людей как заезжают в новую квартиру? Правильно – берут со старой жилплощади все свое имущество. А это – большое количество разнообразных предметов, которые вроде и выкинуть жалко, но будут постоянно мешаться на новой жилплощади. Это и старые кровати, шкафы, тумбочки, которые создавались мастерами, никогда не слышавшими об основах эргономики интерьера.
Как решает проблему дизайн студия «Интерьер-Люкс»
После обращения заказчика в дизайнерскую студию «Интерьер-Люкс» Москва, работа начинает выполняться в такой последовательности:
- Сотрудник выезжает на место предполагаемых работ, чтобы оценить площадь помещений и выработать предполагаемое решение интерьера, после того, как заказчик предоставит информацию о своих желаниях.
- Создается эскиз, дизайнерский проект интерьера, с учетом всех требований эргономики пространства. То есть, это минимальное снижение объема помещений, использование различных встроенных пространств (подполья, шкафчиков, полок), возможная реализация полноценного второго уровня в комнате (когда высота потолков это позволяет, особенно если заказчик не является обладателем высокого роста), максимальное использование всех зон.
Кстати, неэффективное использование пространства – еще одна постоянная ошибка любительского дизайна частного дома или квартиры. Неудобное расположение инженерных систем, размеры мебели, которые не соответствуют габаритам помещения, приводят к тому, что в такой комнате появляются совершенно не используемые зоны. При разработке дизайнерского проекта интерьера нашей студией, учитывается этот момент, поэтому в процессе работы сразу подбирается оптимальная мебель и другие элементы, используемые в ремонтных работах.
Хочется отметить, что стоимость дизайна интерьера зависит от многих факторов. В том числе и от размера помещений, количества используемых в нем предметов. Учитывая тот факт, что небольшие квартиры и дома способствуют минимализму, заказчик дизайн студии «Интерьер Люкс» сможет реально сэкономить на этом важном этапе, который должен предшествовать любому качественному ремонтному процессу.
Эргономичный дизайн интерьера
Хороший дизайнер интерьеров понимает связь между дизайном и эргономикой. Они будут применять эргономические принципы ко всем проектам, будь то работа с коммерческой или жилой недвижимостью. Эргономика — это наука, которая фокусируется на способах преодоления разрыва, существующего между людьми и миром, в котором мы живем.Применительно к дизайну интерьера он просто помогает сделать дизайн более удобным для пользователя. В результате пространство становится полезнее.Вы заметите повышение производительности, и это поможет создать более безопасную среду для всех, кто работает в здании.
Планирование пространства — важная часть эргономичного дизайна интерьера
Первый шаг к созданию эргономичного дизайна интерьера — убедиться, что у вас достаточно места для удовлетворения ваших потребностей. Если вам тесно и тесно, вы чувствуете дискомфорт и вам трудно работать или расслабляться, в зависимости от того, что происходит. Например, при проектировании офисного помещения необходимо убедиться, что в нем достаточно места для всего оборудования и для комфортной работы персонала.
В жилом доме вам нужно достаточно места для свободного передвижения, достаточно мебели, чтобы вы чувствовали себя комфортно, и достаточно места для хранения вещей. В противном случае все начнет казаться загроможденным, и вскоре вы начнете чувствовать себя некомфортно и очень недовольны своим дизайном.
Мы специализируемся на планировании и реализации пространства здесь, в J. Design Group, и ваш проект получит особое внимание наших профессиональных дизайнеров. Наши специалисты имеют многолетний опыт работы как с жилой, так и с коммерческой недвижимостью, и мы готовы помочь.Позвоните нам, чтобы узнать, как мы можем помочь вам создать идеальный дизайн интерьера, используя принципы эргономики.
Обустройство дома или офиса
Поскольку эргономичный дизайн направлен на создание пространства, которое отвечает всем вашим потребностям, обеспечивая при этом максимальный комфорт, настройка всего также очень важна. Люди бывают самых разных форм и размеров, и ваш интерьер должен учитывать всех пользователей, независимо от их роста или роста.
Для жилых домов нужно настроить все, от кухонных шкафов до мебели.Например, если главный повар едва достигает пяти футов в высоту, вам нужен дизайн кухни, который позволил бы этому человеку легко добраться до шкафов и прилавков, даже если все остальные намного выше.
Женщине небольшого роста было бы трудно сидеть на большом диване, потому что ее ноги не касались бы пола, если бы она попыталась сесть полностью назад. Однако шестифутовому мужчине будет неудобно сидеть на небольшом диване, подходящем для человека меньшего роста. Вот почему при создании эргономичного дизайна вам нужно выбирать нестандартные детали.Вся мебель должна соответствовать размеру человека, который ею больше всего пользуется, чтобы повысить производительность и комфорт.
Эргономика и дизайн интерьера • Paradigm Interior Design
Эргономика обычно относится к поддержке и комфорту, обеспечиваемому предметом мебели, по отношению к эффективности человека в его рабочей среде. Мы много раз слышим этот термин в описании офисных стульев или столов. Это также важный фактор в дизайне интерьера … он учитывает форму комнаты, мебель, людей — сколько людей и как они будут взаимодействовать с пространством.Эргономичный дизайн интерьера повысит комфорт клиента, будь то рабочее место или дом.
Теперь, когда многие из нас проводят больше времени дома, мы, возможно, обнаруживаем некоторые проблемы в наших собственных домах в отношении обоих этих определений эргономики… комфорт пространства и мебель в наших домах, которые мы также адаптировали в офисные помещения. как общий поток и комфорт пространства, в котором мы живем. Давайте сегодня поговорим об этом и о том, как мы можем внести некоторые изменения, которые будут иметь большое значение.
У вас уже есть домашний офис для работы, которую вы сейчас делаете? Многие из вас этого не сделали, поэтому вы, скорее всего, устроили импровизированный офис на своем кухонном острове, за кофейным столиком или даже в спальне. В краткосрочной перспективе это, вероятно, нормально, но чем дольше вы работаете дома в такой обстановке, тем выше вероятность физических результатов. Прежде чем начнутся боли в спине или плечах и шее (если они еще не появились), давайте поговорим о том, что мы можем сделать, начиная с сегодняшнего дня, стоит ли вам покупать эргономичное кресло.
1. Установите свой «стол» так, чтобы на мониторе было удобно видеть, и вам не приходилось нагружать шею. При необходимости поднимите монитор или ноутбук с книгами или коробками.
2. Регулярно меняйте положение сидя. По возможности отрегулируйте стул, регулярно меняйте положение сидя — не проводите слишком много времени в одном и том же положении.
3. Делайте частые перерывы. Сделайте несколько быстрых упражнений, прогуляйтесь, запланируйте 10-минутный перерыв в занятиях йогой, вставайте хотя бы каждые 20 минут.
4.Обратите внимание на свою осанку. Сутулость оказывает давление на спину и является верным способом вызвать боль в спине при работе из дома.
5. Купите подушку для поддержки поясницы или подушку стула — если боль в спине уже является для вас проблемой, подушку или подушку для поддержки поясницы можно приобрести менее чем за 50 долларов, и они могут частично облегчить боль.
6. Купите эргономичное офисное кресло и создайте дом, который будет здоровым местом для вас. Если у вас есть где-то в доме, где можно поработать, возможно, сейчас самое время внести эти изменения.Офисные стулья могут стоить от чуть более 100 долларов до более 1000 долларов… вот
Что касается эргономичного дизайна интерьера, здесь я могу помочь!
Как мы обсуждали до , мы продолжаем предлагать услуги через Facetime, Pinterest, Доски настроения, Designer On-Call и другие услуги электронного дизайна. Теперь, когда у вас есть больше времени, чем когда-либо, чтобы увидеть, как ваше пространство работает в общем дизайне вашего дома, возможно, выяснилось, что есть место для улучшения или даже необходимость в каких-то серьезных изменениях.Я хотел бы помочь вам спланировать этот новый домашний офис или поработать с вами над другими проблемными зонами в вашем доме. Не стесняйтесь, напишите мне , напишите мне и приступим!
Эргономика — физическая, поведенческая, эмоциональная
t: есть что-то обнадеживающее в таких привычных, низкотехнологичных формах. и, конечно же, мы также наблюдаем тенденцию к более уютному виду на рабочем месте.
TOM: Знакомство — неотъемлемая часть нашего дизайна, но знакомые формы вписываются в новые типы помещений в офисе.Я думаю, что ярлык для дома или жилого дома — это непросто. Нам еще предстоит найти подходящее слово, чтобы описать то, что другие называют жилым, сопереживающим и так далее. Это скорее мягкость и непринужденность, баланс между мягкостью и технологичностью, продуктивность и стиль — найти золотую середину между сочувствием и рациональностью. Мы начали использовать термин «неформальная продуктивность» для описания новой парадигмы работы, воплощенной в Зонах.
ЛЮК: Раньше мы разрабатывали рабочие стулья, которые должны были приспособить стул к вашему телу.Теперь, когда люди сидят на месте гораздо меньше времени, мы можем создать стул, который будет очень удобным и поддерживающим, таким, который облегает тело, но не настолько техническим. Это гораздо более мягкое представление о том, какой должна быть эргономика, и она зависит от контекста. Более простое, менее техническое кресло на самом деле очень умно и создает более захватывающий визуальный ландшафт.
TOM: Если мы все время полностью рациональны, дизайн становится неинтересным. Это слишком прагматично. Дизайн не всегда должен начинаться с чисто рационального или эргономического анализа.В дизайне интерьера действительно есть возможность создать Вау! И мы хотим «удивлять и радовать». Это старая, хорошо известная фраза, но почему бы и нет?
ЛЮК: Технологии в некотором роде освободили офисный дизайн. Мебель не нуждается в техническом обслуживании — мы все довольны Wi-Fi. Дизайн может быть больше связан с созданием отдельных элементов, которые нравятся людям и которые могут быть выбраны такими, какие они есть. Конечно, слишком далеко зайти в этом направлении может создать хаос.
TOM: Организации любят систематизировать и организовывать вещи, поэтому существует некоторый конфликт между нашей способностью доставлять единичные элементы и потребностью в очень практичных и масштабируемых решениях.Но сегодня корпоративный мир гораздо лучше осведомлен о том, как рабочее место представляет бренд, как оно влияет на восприятие посторонними, а также на то, как люди в организации думают о себе. Рабочее пространство может служить способом позитивного использования бренда.
ЛЮК: Я мог бы сравнить это с цветами, которые привлекают нужных насекомых, потому что каждый цветок имеет видимую индивидуальность. Но это еще не все. Организации могут действительно выразить, как они хотят вести себя и кого они хотят привлечь, посредством целостного выражения бренда.Каждый может немного лучше понять других.
TOM: Используя весь свой опыт, знания и интуицию, мы можем создавать уникальные и привлекательные объекты, даже беззаботные и поэтичные, но легкомыслие может утомлять. Прямо сейчас в дизайне может быть слишком много легкомыслия. Ему не хватает спокойствия и уравновешенности. Есть ощущение, что все идет. Я думаю, что ситуация меняется. Одно мы точно знаем, это то, что изменится экономика, изменятся технологии, все это бесконечно развивается, и что мы дрожим на этой волне изменений, делая все, что в наших силах.
Эргономика рабочего места — Rieke Office Interiors
Вот пять доказанных преимуществ строгой эргономики рабочего места:
1. Эргономика снижает затраты.
Систематически снижая факторы эргономического риска, вы можете предотвратить появление дорогостоящих паспортов безопасности материалов (MSD). Учитывая, что примерно 1 доллар из каждых 3 долларов затрат на компенсацию рабочих приходится на MSD, это дает возможность значительной экономии средств. Кроме того, не забывайте, что косвенные затраты могут в двадцать раз превышать прямые затраты на травму.
2. Эргономика повышает производительность.
Лучшие эргономические решения часто повышают производительность. Создавая работу, учитывающую хорошую осанку, меньшее напряжение, меньшее количество движений и лучшую высоту и досягаемость, рабочая станция становится более эффективной.
3. Эргономика улучшает качество.
Плохая эргономика приводит к разочарованию и утомлению рабочих, которые не выполняют свою работу наилучшим образом. Когда рабочая задача слишком сложна для рабочего, он может не выполнять свою работу так, как был обучен.Например, сотрудник может недостаточно туго затянуть винт из-за необходимости большого усилия, что может вызвать проблемы с качеством продукции.
4. Эргономика повышает вовлеченность сотрудников.
Сотрудники замечают, когда компания прилагает все усилия для обеспечения их здоровья и безопасности. Если сотрудник не испытывает усталости и дискомфорта в течение рабочего дня, это может снизить текучесть кадров, уменьшить количество прогулов, улучшить моральный дух и повысить вовлеченность сотрудников.
5. Эргономика способствует повышению культуры безопасности.
Эргономика демонстрирует приверженность вашей компании безопасности и здоровью как основной ценности. Совокупный эффект предыдущих четырех преимуществ эргономики — более высокая культура безопасности для вашей компании. Здоровые сотрудники — ваш самый ценный актив; создание и развитие культуры безопасности и гигиены труда в вашей компании приведет к повышению производительности труда сотрудников вашей организации.
Миссия по обеспечению рентабельности инвестиций по созданию рабочих мест, которые ЛЮБЯТ люди, постоянно достигается благодаря тому, что мы принимаем во внимание все факторы проектирования, включая ЭРГОНОМИЧНОСТЬ.Если увеличение доходов, снижение затрат и создание рабочего места, которое любят сотрудники, являются приоритетом для вашего бизнеса, позвольте ROI построить вашу следующую мечту.
Эргономичность в дизайне | GESAB
Эргономика — это наука, которая позволяет эффективно и без вреда для здоровья работать на нашем рабочем месте. Чтобы создать идеальное пространство, необходимо сочетать ряд условий, включая освещение, окружающую среду, мебель и т. Д., Которые должны соответствовать друг другу, чтобы создать идеальное равновесие.
Когда мы начинаем разработку проекта, команда инженеров и архитекторов GESAB изучает помещение, чтобы спроектировать комбинацию всех элементов, которые будут его частью, чтобы достичь того равновесия, которое предлагает лучшие условия для рабочих для выполнения своей работы. . Исследования освещения, окружающей среды и дизайна интерьера включают некоторые из выполняемых действий.
Однако концепция эргономики выходит за рамки проектирования композиции, например, диспетчерской, учитывая, что в GESAB эта концепция является основой дизайна наших собственных продуктов.Все консоли GESAB имеют дизайн, который включает основные принципы эргономики: их высота и наклон регулируются, их края закруглены, а их конструкции удерживают все соединительные компоненты и кабели внутри, среди прочего, для обеспечения безопасности.
Эргономика также является ключевым элементом в отношении доступности, что означает, что она облегчает доступ оператора к компонентам или соединениям консоли, когда это необходимо. Это справедливо также для любого рабочего, которому необходимо взаимодействовать с консолью, не только для оператора, но и для бригады технического обслуживания или уборки.
Про-эргономичный дизайн может быть применен ко всем элементам комнаты: стульям, шарнирным рычагам для мониторов, вспомогательной мебели, визуальной эргономике и т. Д. Все сводится к оптимизации отношений между людьми, машинами и окружающая среда для повышения эффективности, безопасности и благополучия рабочих. GESAB учитывает все эти принципы при проектировании и реализации любого проекта диспетчерских или центров управления, а также в своих центрах обработки данных.
Раскрытие важности эргономики на рабочем месте
1. Повышенная производительность
Эргономичное рабочее пространство гарантирует, что все, что необходимо сотрудникам для выполнения своих задач, находится в непосредственной близости и легко доступно. Он также будет включать в себя мебель, которая призвана как улучшить, так и поддержать вашу осанку, чтобы вам было удобнее во время работы.
Благодаря обоим этим факторам, способствующим комфорту человека, он помогает повысить уровень производительности на вашем рабочем месте, поскольку сотрудники могут выполнять задачи эффективно и без боли, которая может нанести вред работе.
2. Лучшее качество работы
Наряду с повышением производительности, важность офисной эргономики подчеркивается еще и тем, что она влияет на качество работы! Хорошая эргономика офиса сводит к минимуму физическое напряжение для работающих сотрудников и позволяет им лучше сосредоточиться на выполняемой задаче и выполнять свою работу наилучшим образом!
Это также способствует повышению бдительности на рабочем месте и поощряет взаимодействие между членами команды, что, в свою очередь, также способствует повышению качества работы, которую могут выполнять члены вашей команды.
3. Более здоровые сотрудники
Плохая эргономика во многом связана с нарушениями опорно-двигательного аппарата, связанными с работой (WRMSD), и может способствовать увеличению числа больничных дней вашего персонала. Об этом свидетельствуют цифры, собранные HSE, согласно которым в Великобритании в 2017-2018 годах было потеряно 6,6 миллиона рабочих дней в результате WRMSD.
Это подчеркивает тесную взаимосвязь между плохой эргономикой рабочего места и здоровьем сотрудников, и поэтому работодатели, вкладывающие средства в хорошую эргономику, могут помочь сократить количество больничных, повысить производительность и повысить качество и объем выполняемой работы!
4.Снижение затрат
Помимо первоначальных затрат на эргономичные функции на рабочем месте, эргономичный офис действительно может помочь бизнесу сэкономить деньги в долгосрочной перспективе.
Улучшенная эргономика помогает снизить распространенность WRMSD, которая составляет около 35% заболеваний на рабочем месте согласно данным HSE, а снижение распространенности WRMSD означает сокращение количества дней по болезни и сокращение дорогостоящих требований о компенсации со стороны сотрудников.
Сумма, которую можно сэкономить, делает вложения в хорошую эргономику офиса окупаемыми!
5.Более высокая удовлетворенность и удержание сотрудников
Сотрудники часто чувствуют, что работодатель их больше ценит, когда компания заботится об их рабочем пространстве и инвестирует в него, в том числе в эргономике. Это может иметь большое значение для удержания и привлечения квалифицированного персонала и в значительной степени способствует тому, чтобы сотрудники чувствовали себя более счастливыми на работе. Нужно ли говорить больше?
Инвестиции в хорошую эргономику
Что такое эргономика и почему это важно?
В наши дни много говорят об эргономике офиса.По мере того как сидячая работа становится все более и более распространенной, проводится все больший объем исследований о том, какое влияние эти виды занятий могут оказывать на организм людей.
Понятие эргономики часто рассматривается как расплывчатое представление, которое многие люди не могут понять, связанное с их рабочим местом, офисом или организацией. Что еще более важно, они не знают, как эргономика офиса может повлиять на сферы жизни вне работы.
Итак, что такое эргономика и почему она важна для вашего бизнеса?
Что такое эргономика? «Цель эргономики — приспособить задачу к индивидууму, а не индивидуум к задаче.”
Джеффри Э. Фернандес, Ph.D. PE, CPE и Майкл Гудман, MD, MPH
Проще говоря, эргономика — это изучение взаимодействия между людьми и инструментами, которые они используют. Точнее, , как взаимодействуют сотрудников и их инструменты.
Люди, изучающие эргономику, также ищут способы улучшить дизайн вышеупомянутых инструментов, чтобы улучшить их взаимодействие с пользователем.
Если посмотреть на офисную среду, можно увидеть бесчисленное множество областей, в которых эргономика может иметь значение. Все — от стульев, на которых сидят люди, до столов, которые они используют, или их положения при печати — это элемент эргономики.
Конечная цель изучения эргономики — найти улучшения в инструментах, которые люди используют во время повседневной работы. Люди не работают, когда им неудобно или больно, но с помощью правильных инструментов мы можем помочь им чувствовать себя лучше на работе и стать более продуктивными, счастливыми и здоровыми.
Почему важна эргономика?Плохая эргономика может привести к хроническим повторяющимся стрессовым травмам (RSI), таким как запястный канал, боли в спине, шее или суставах.Фактически, неправильная эргономика — один из самых серьезных рисков на рабочем месте, с которым сталкиваются офисные работники.
Исследование, проведенное Норвежским государственным институтом, показало, что после простуды мышечные боли были второй по частоте причиной прогулов на работе. Они также обнаружили, что при внесении улучшений в дизайн рабочего места и сидения, прогулы по спине сократились вдвое, а количество сотрудников, покидающих бизнес или уходящих в долгосрочный отпуск, резко упало.
Отдельные исследования, проведенные в США, показали, что после эргономических вмешательств в State Farm Insurance и Blue Cross-Blue Shield производительность труда сотрудников увеличилась на 15 процентов и 4.4 процента соответственно. Для МСП с примерно 50 сотрудниками это увеличение производительности эквивалентно найму от двух до восьми дополнительных сотрудников на полную ставку. Еще одно исследование, проведенное учеными из Университета Майами, показало, что частота нажатия клавиш для задач ввода данных улучшилась на 5 процентов после того, как рабочие были переведены в эргономически правильное рабочее место.
Однако эргономическая травма может нанести гораздо больший вред, чем просто производительность труда. Дома они могут быть прикованы к кровати или кушетке, пропуская занятия с друзьями и семьей.Какая культура на рабочем месте сформируется со временем, если ваша команда почувствует, что упускает некоторые аспекты своей домашней жизни из-за эргономической травмы на рабочем месте?
Несомненно, эргономические травмы оказывают значительное влияние как на человека, так и на организацию в целом.
80 процентов людей будут испытывать боли в спине на протяжении всей своей жизни. Кроме того, боль в спине — одна из наиболее частых причин, по которым сотрудники пропускают работу. Как потеря рабочего времени влияет на ваше рабочее место? Если бы вы могли улучшить эргономику своего офиса и сократить количество дней по болезни или нетрудоспособности, что бы это повлияло на производительность? Эргономика — это не только боль; это проблема, которая также может повлиять на прибыль.
Выявление проблем с эргономикойИтак, вы понимаете, что травмы с эргономикой — это плохо, но как определить потенциальные проблемы с эргономикой до того, как они перерастут в травму?
Хотя офисные должности могут сильно отличаться от программирования до ввода данных, маркетинга и всего остального, между большинством офисных должностей есть некоторые сходства.
Люди, работающие в офисе, обычно проводят большую часть дня, сидя на одном месте.Сидение не похоже на травму, плохо спроектированные стулья и неправильно отрегулированная мебель могут вызвать нагрузку на спину, шею и плечи. На самом деле, рабочие стулья низкого качества — одна из трех основных эргономических опасностей, которые мы обнаруживаем в офисах наших клиентов.
Набор текста — это еще одна задача, с которой ежедневно справляется почти каждый сотрудник офиса, и еще одна распространенная причина хронической боли, если его рабочая станция не настроена эргономично. Правильно отрегулированные подлокотники и простые инструменты, такие как подставки для клавиатуры, могут иметь большое значение для предотвращения травм, таких как синдром запястного канала.
Предоставление эргономичных инструментов для выполнения работыПомимо создания передовых практик и стандартов для вашей команды, вы должны убедиться, что у ваших сотрудников есть необходимые инструменты, которые позволят вам чувствовать себя комфортно и продуктивно в течение дня.
Столы для работы сидя и стоя становятся невероятно популярными в современных офисах. Эти столы дают сотрудникам возможность плавно переходить из положения сидя в положение стоя, не прерывая свою работу каким-либо существенным образом.Эксперты рекомендуют сотрудникам проводить не менее десяти минут из каждых тридцати минут стоя или ходьбы. Стол для работы сидя и стоя делает это легко.
Эргономичные кресла также являются отличным решением, помогающим сотрудникам чувствовать себя хорошо во время работы. При поиске эргономичных стульев вам следует искать стулья, которые обеспечивают адекватную поддержку нижней части спины. Конструкция стула должна помогать мышцам спины расслабляться, когда сотрудники сидят и работают.
У вас есть еще вопросы по эргономике? Мы посвятили целый раздел нашего веб-сайта ответам на эргономические вопросы, которые наши клиенты задают чаще всего.
Кори Портеус
Директор по маркетингу и развитию входящего бизнеса
Офисные интерьеры

Зона сна, оборудованная по всем требованиям, обеспечивает полноценный ночной сон. Размеры кровати, ее длина и ширина учитывают все положения человека, способствующие отдыху — это наличие высокого изголовья, упора для спины, дополнительных полочек, с которых можно брать книги и мелкие вещи, не вставая с кровати.
Высота сиденья стула или эргономичного кресла определяется длиной голени сидящего человека. Эргономика кресла позволяет легко встать или развернуться за столом, достать документы и канцтовары, расположенные по периметру рабочего места. Эргономика стола учитывает оптимальное положение тела человека, сидящего за ним.
Это же касается и организации выставок на небольших пространствах: только профессионалы смогут расположить экспонаты наиболее выгодным образом.
Посуда, утварь, предметы ежедневного пользования располагают «под рукой».
Цветовое решение также должно соответствовать виду помещения – в спальне предпочтительны успокаивающие тона, кухне – способствующие аппетиту, пищеварению, рабочем кабинете – сосредоточению на поставленных задачах и др.;
Существует также множество моделей со встроенными зарядными устройствами для гаджетов, дверками, которые открываются-закрываются с помощью пульта и др.;